Go to content

Site Development - Portfolio for Jay Harman

Skip menu
Skip menu
Skip menu
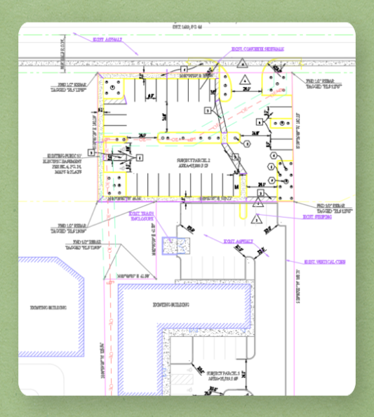
Parking Lot Expansion
The Site Expansion was a chance to expand an office complex parking lot.  The requirements include a certain number of spaces, and a required amount of ADA parking.  There was an easement on the property, so I had to compensate my design to account for it.  My first order of business was to find out exactly what the property owner required.  Then after reviewing the surveyor's report and investigating the codes for parking, I used Xref to place the surveyor's file.

I then started to create my own parking lot. I used the Line, Offset, Trim and Extend tools to start off.  The dimension tool was very helpful to get the exact positions and dimensions of the project.  I also created my own layers.

Back to content